Uputstva

KANALIZACIJSKI POKLOPCI I REŠETKE ZA KANALSKA OKNA I OTVORE I ODVODNE KANALE

OPIS UPUTE I SVOJSTVA PROIZVODA

UPUTSTVA I SAVJETI ZA PRIMJENU

TEHNIČKO – KONSTRUKCIJSKA RJEŠENJA I OPIS

Kanalizacijski poklopci i rešetke su proizvedeni i primjenjuju se sukladno normi EN 124-2:2015. Poklopci klasa nosivosti B125, C250, D400, E600 i F900 su snabdjeveni u okviru prstenom od tvrdog elastomera koji osigurava stabilan dosjed poklopca u okvir i tihu eksploataciju bez buke koja bi mogla nastajati prolaskom prometnih sredstava preko poklopaca.
Zbog prometne sigurnosti ili sprečavanje pristupa u okno, dosadašnje norme su uvjetovale minimalnu masu poklopca. Danas se to, posebno kod klasa nosivosti B125, C250, D400, E600 i F900 postiže dodatnim zaporkama, vijcima ili na drugi način. Pri tome se poklopce i rešetke, ako su sa šarkama-zglobom, ugrađuju tako da se obvezno zaklapaju u smjeru vožnje. Pristupne penjalice u kanalizacijskom oknu moraju ostati dostupne, otvoreni poklopac ne smije onemogućavati ulazak u kanalizacijsko okno, zglob ne smije biti nad penjalicama što dovodi u pitanje sigurnost pristupa kanalizacijskom oknu. Poklopci i rešetke sa zglobom moraju u otvorenom položaju da su odgovarajuće osigurani od nekontroliranog zatvaranja, te u otvorenom položaju kod održavanja kanalizacijskog sustava ne smije otežavati ulazak u okno i pristup priboru za čišćenje od strane poslužitelja.

Poklopci se proizvode kao puni, potpuno zatvoreni ili sa otvorima za ventilaciju, kroz koje se ventilira kanal, a koji imaju funkciju prihvata ograničene količine površinskih voda sa prometne površine. Također, proizvodimo i poklopce sa hidrauličnim kanalom u okviru koji ispunjavamo nekom tekućinom, a po zatvaranju sa punim poklopcem osiguravamo da miris iz kanalizacije nemože prodrijeti u prostor gdje je poklopac ugrađen. Ovi poklopci nalaze primjenu posebno za zatvorene prostore.

NORME ZA PROIZVODNJU I PRIMJENU

Kanalizacijski poklopci i rešetke su sastavni dijelovi prometnih površina. Svi dijelovi i elementi odvodnje i prometnih površina moraju zadovoljiti veoma strogu sigurnosnu regulativu. Zbog toga se svi naši proizvodi projektiraju i proizvode sukladno važećim normativima za ovo područje, a posebno normi EN 124:2015. Pri tome, važno je navesti da se svi naši proizvodi svakodenvno podvrgavaju provjerama, kako statičke, tako i dinamičke nosivosti, a također dimenzionalne i funkcionalne točnosti.

Sukladno navedenoj normi, svaki proizvod i proizvodnja se proizvode pod nadzorom vlastitog sustava kontrole i ispitivanja, a također su sukladno EN124-2:2015 pod nadzorom neovisne kontrolne institucije, koja nadzire proizvodnju i izdaje odgovarajuće certifikate o nadzoru proizvodnje i certifikate o proizvodima koji su na raspolaganju našim kupcima i korisnicima..

KLASE NOSIVOSTI I MJESTA UGRADNJE

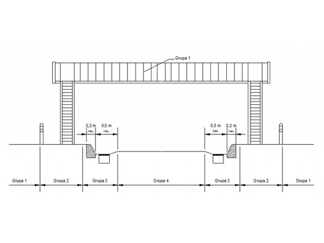
Za odabir i upotrebu određene klase odvoda, odnosno pklopaca ili rešetke ravnamo se prema mjestima ugradnje istih a sukladno standardu EN 124:2015. Mjesta ugradnje su podijeljena na 6 različitih grupa. Donje skice pokazuju položaj pojedinih grupa u okviru jedne prometnice. Za svaku grupu je kao preporuka dana okvirno koja se klasa i na kojem mjestu treba upotrijebiti. Konačan izbor klase je prepušten krajnjem korisniku odnosno projektantu. U slučaju eventualnih dvojbi u izboru, obvezno se odabira viša klasa.

Grupa 1 (najmanje klasa A 15)
Prometne površine predviđene isključivo i samo za pješake i bicikliste

Grupa 2 ( najmanje klasa B 125 )
Prolazi , pješačke zone i slične površine, parkinzi i garaže za putnička vozila.

Grupa 3 ( najmanje klasa C 250 )
Odvodi u području koje se nalazi uz nogostup, mjereno od rubnika max. 0,5 m u voznoj površini i max. do 0,2 m. u području nogostupa, sa jedne i druge strane prometnice.

Grupa 4 ( najmanje klasa D 400 )
Vozne trake prometnica ( također i pješačke prometnice ) pomoćne trake prometnica, parkirališta predviđena za sve vrste prometnih sredstava.

Grupa 5 ( najmanje klasa E 600 )
Površine sa visokim osovinskim opterećenjem, kao npr. pristanišni dokovi i aerodromi.

Grupa 6 ( najmanje klasa F 900 )
Površine sa posebno visokim osovinskim opterećenjem, kao npr. lučke i aerodromske prometne površine te uzletno – sletne piste.

OZNAČAVANJE POKLOPACA I REŠETKI

Svi naši proizvodi označavaju se sukladno EN 124-2:2015. i važečim propisima Na gornjoj strani obvezno se nalazi oznaka standarda EN 124-2 i nosivost u izražena KN, te onaka neovisne certifikacijske institucije. Također može se nalaz oznaka namjene kao i oznaka korisnika, sa eventualnim amblemom korisnika.
Sa donje strane se obvezno nalazi oznaka proizvoda prema katalogu proizvođača, oznaka datuma, mjeseca i godine proizvodnje, te oznaka proizvođača.
Dodatne oznake mogu se postaviti sukladno zahtjevu kupca i tehnološkim mogućnostima.


Tipičan presjek jedne prometnice sa prikazom rasporeda pojedinih grupa prema mjestima ugradnju


Tipičan presjek jedne pomoćne prometne trake sa rasporedom pojedinih grupa prema mjestima ugradnje

PREPORUKE ZA UGRADNJU

Dosadašnja iskustva u eksploataciji kanalizacijskih poklopaca dokazuju da je točnost visine ugradnje poklopaca i rešetki u voznu površinu veoma važna za trajnost i ugodnu ekspolataciju. To znači da okvir i poklopac moraju biti u idealnoj ravnini sa voznom-završnom podlogom prometne površine. Poklopci moraju biti proizvedeni sa dimenzionalnom točnošću propisanom normom EN124-2:2015. U slučaju istrošenosti amortizacijskog uloška, ako ga poklopac ima, treba ga zamijeniti sukladno uputi proizvođača. Ovo će osigurati miran promet bez buke, udara, klopotanja poklopaca i eventualnih oštećenja prometne površine i prometnih sredstava.

Za ugradnju naših poklopaca i rešetki može se koristiti tradicionalni način ugradnje na samom gradilištu, ili korštenjem u radionici predfabriciranih elemenata. Kod obadva vida ugradnje potrebno je se pridržavati važećih normi i naših preporuka, te koristiti samo visokokvalitetne sirovine i materijale.

TRADICIONALNI NAČIN UGRADNJE

Za postavljanje okvira osigurati slobodan otvor iznad okna u promjeru najmanje 1,6 puta veći od vanjskog promjera okvira. Dubina otvora je ovisna ovisini okvira i potrebnoj nosivosti poklopca. Ovo važi i za zamjenu postojećeg, kao i za ugradnju novog okvira. Preko tako ostavljenog otvora postave se dvije grede na koje se na odgovarajući način pričvrsti okvir, tako da se obezbijedi potpuna ravnina okvira i zvaršnog sloja prometne površine. Pri tome, vanjski promjer okvira mora biti veći od svijetlog otvora okna, ako to nije slučaj, treba osigurati armirano-betonsku međuploču sukladno potrebnoj nosivosti i normama EN4034 i EN4052. Pri radu je potrebno osigurati da beton i drugi materijali ne uđu u okno. Podloga mora biti pripremljena da ima nosivost od najmanje 7,5N/mm². Upotrebljeni beton mora imati min. jakost od 50N/mm², nakon od proizvođača datog vremena očvršćavanja. Naši okviri klase nosivosti B125, C250, D400, E600 i F900 samom svojom konstrukcijom se dobro ankerišu u betonski vijenac, dok okvire klasa A15 i B125, a negdje i C250 i D400 treba odgovarajuće ankerisati kroz za to predviđene otvore. Pri tome, poklopci i rešetke, okviri poklopca, beton, okno i nosiva podloga do nivoa horizontalnog odvoda, trebaju da tvore jedinstvenu nosivu konstrukciju koja treba da izdrži predviđenu nosivost, te osigura sigurno i tiho odvijanje prometa.

Na gornjij strani treba ostaviti 3-5 cm (ovosno o projektu i klasi nosivosti), za završni sloj asfalta ili druge podloge. Za ubrzanje rada mogu se koristiti, kako brzovezujući cement, također i aditivi protiv smrzavanja, a i aditivi protiv utjecaja sredstava protiv smrzavanja. Preporučamo da se za ove potrebe koristi odgovarajući mineralni drobljenac granulacije oko 4 mm. Pritisna čvrstoća betona poslije 30 minuta treba da je min. 1,5N/mm², poslije 24 sata – 35N/mm², poslije 28 dana min. 50 N/mm². Po očvršćavanju betona potrebno je ukloniti podlogu i zaštitu za betonirenje, nosače, te dobro i detaljno očistiti okvir, posebno dosjede poklopca, zglob i sistem za zatvaranje, elastični uložak, ukoliko ga ima, ležište hvatača nečistoća, te pravilno pozicionirati poklopac ili rešetku u ležište. Skidanje obloga i postavljanje poklopca se ne smije raditi prije roka očvršćavanja betona preporučenog od strane proizvođača, a svakako ne prije 72 sata po betoniranju. Također, polaganje završnog sloja asfalta i puštanje u promet može se izvršiti samo po isteku od strane proizvođača betona preporučenog roka potpunog očvršćavanja betona.

UGRADNJA KORIŠTENJEM PREDFABRICIRANIH ELEMENATA

Mi preporučamo da se, u cilju osiguranja kvalitete a i ubrzanja radova na samom gradilištu, prije ugradnje poklopaca i rešetki izvrši predbetoniranje okvira sukladno normama za svaku vrstu okna, normama DIN 4052-2 i 3, DIN4034-1 te DIN 1236 i našim preporukama, te tako pripremljeni predbetonirani okvir položi na prethodno pripremljenu podlogu koja mora biti kvalitetno i točno pripremljena za odgovarajuću vrstu okna i nosivost, te može biti izvedena oko okna kvalitetnim prednabijanjem podloge sa ili bez podbetoniranja odgovarajućom markom betona. Okvir, okno i betonska podloga moraju biti izvedeni od kvalitetnih materijala, kao jedinstvena konstrukcija sposobna da nosi predviđeno opterećenje prometa na mjestu ugradnje, sve prema pripadajućim EN normama. Izvedeni beton pri tome mora biti najmanje kvalitete betona klase C25/30.

Kanalizacijsko okno može biti izvedeno na razne načine, kao armirano-betonsko sukladno EN 1917, keramičko sukladno EN 295-6, HD-PE sukladno EN DIN19537, PVC-U, PP i PE sukladno EN 13598-1, ili na neki drugi način, sukladno nosivosti i odabiru projektanta. Naši poklopci i rešetke su primjenjivi za sve vrste kanalizacijskih okna. Napominjemo da je važno da ugrađeni poklopac ili rešetka moraju biti veoma točno nivelirani u ravninu prometne površine, tako da nema odstupanja visine okvira, poklopca i završnog sloja prometne površine a samo okno mora biti kvalitetno zaptiveno sukladno normi DIN 4060.

Kod kanalica, tijelo kanalice i betonska obloga moraju biti izvedeni kao jedinstvena konstrukcija sposobna da nosi odgovarajuće opterećenje prometa¸na mjestu ugradnje, sve prema normi EN 1433. Izvedeni beton pri tome mora biti najmanje kvalitete betona klase C25/30 uz obvezno ankerisanje lijevano-željeznog okvira.

Dimenzije, prijedlog načina i postupka ugradnje koje dajemo u ovoj preporuci su sukladne važećim normama, ispitane i višekratno provjerene u praksi, te na osnovu laboratorijskih ispitivanja i praktičnih provjera, priznat od više nacionalnih instituta. Dimenzije betona date u ovoj preporuci su dobijene tako da predloženi profili podloge, klasičnog betona i polimerbetona kod kanalica, kao jedinstvena nosiva stijena potpuno sigurno nosi opterećenje predviđene klase nosivosti.

Preporučamo da se betonu koji se ugrađuje u prometne površine dodaju aditivi koji sprečavaju štetno djelovanje sredstava protiv smrzavanja.

ZATVARANJE I OTVARANJE POKLOPACA I REŠETKI

Poklopci klasa nosivosti A15 a djelomično B125 su izvedeni bez zaključavanja i dosjedom metal-metal. Otvaranje se vrši jednostavnim zahvatanjem i dizanjem poklopca, što je zbog male težine poklopca jednostavno izvedivo. Poklopci i rešetke klasa nosivosti B125, C250, D400, E600 i F900 mogu biti snabdjeveni samozatvarajućom zaporkom i zglobnim otvaranjem, te elastičnim prstenastim uloškom koji osiguravaju dobro zatvaranje i mirnu eksploataciju. Otvaranje poklopca se vrši jednostavnim umetanjem plosnate špice u za to predviđeni utor na okviru, te podizanjem poklopca, čime se oslobađa elastična zaporka, te se zatim poklopac podiže oko zgloba ili šarke. Poklopac se jednostavno zatvara okomitom pritiskom. U slučaju potrebe ili posebnog zahtjeva, poklopci i rešetke mogu se izvesti sa dodatnim zaključavanjem, vijcima ili na neki drugi način.

KONTROLNI PREGLEDI

Poklopce i rešetke je potrebno periodično pregledati, pri čemu treba kontrolirati čistoću dosjeda između poklopca/rešetke i okvira, te ga očistiti, zatim je nužno provjeriti istrošenost poklopca, okvira i elasičnog uloška, te u slučaju potrebe zamijeniti isuviše istršeni dio koji ne osigurava točnost visine prema normi EN 124;2015. Kod poklopaca sa hidrauličnim kanalom u okviru protiv prodiranja mirisa iz kanalizacije, potrebno je taj kanal držati čistim, kako bi tekućina u kanalu vršila funkciju hidrauličke zaporke protiv izlaska mirisa iz kanala.

PREPORUKA ZA RUKOVANJE PROIZVODOM

Sukladno važećim odredbama propisa o zaštiti na radu, svi poklopci i rešetke koji prema našim kataloškim podacima teže više od 30 kg, ne mogu biti manipulirani i prenošeni od strane jedne osobe i za manipulaciju je neophodno osigurati veći broj rukovalaca ili odgovarajući uređaj za dizanje i manipulaciju. (Preporuka-D.Leg 626/94).

SKLADIŠTENJE PROIZVODA

Proizvod se može skladištiti na otvorenom i pokrivenom skladištu, bez ikakvog štetnog utjecaja na okoliš

TRAJNOST PROIZVODA I NJEGOVO ZBRINJAVANJE

Proizvod, ukoliko nema vidljivih oštećenja, ima upotrebljivost najmanje 7 godina od datuma proizvodnje. U slučaju oštećenja iz bilo kojeg razloga, ili ukoliko se ne namjerava upotrebiti, zbrinjava se kao želljezni otpad putem za to ovlaštenog subjekta, i nema nikakvih štetnih utjecaja na okoliš.

ODRICANJE OD ODGOVORNOSTI

Ovaj dokument je izrađen na Hrvatskom jeziku sukladno zahtjevima Čl.54 Zakona o građevnim proizvodima, NN 76/2013. Sva moguća pažnja bila je posvećena prilikom kreiranja navedenih podataka. Svi prijedlozi vezani za korištenje proizvoda daju se bez jamstva jer je njihovo korištenje i ugradnja izvan naše kontrole. Kupac je odgovoran za odabir i pravilnu ugradnju proizvoda, te je dužan osigurati sva potrebna sredstva zaštite kako bi se okolina u kojoj se proizvod ugrađuje bila sigurna za ljude i sam proizvod. Svi tehnički podaci o proizvodu se provjeravaju i odgovaraju tehničkoj deklaraciji ukoliko se upotrebljavaju i koriste sukladno uputi, bez jamstva kojim bi se tvrtka isporučitelj ili bilo koji njezin zaposlenik vezao za eventualnu odgovornost nakon eventualne greške prilikom ugradnje ili krivog odabira proizvoda. Svi proizvodi koje tvrtka isporučuje kupcu biti će isporučeni prema našim općim uvjetima prodaje i u svemu odgovaraju certifikatu i deklaraciji. Svaki isporučeni komplet proizvoda treba obvezno da prate ove upute, mjerna skica proizvoda, tablica sa podatcima o proizvođaču, mjestu proizvodnje, podatcima o proizvodu, originalni Certifikat o stalnosti svostava kontrolnog tijela te Izjava o svojstvima proizvođača.

by e-mailing - valid without signature and seal